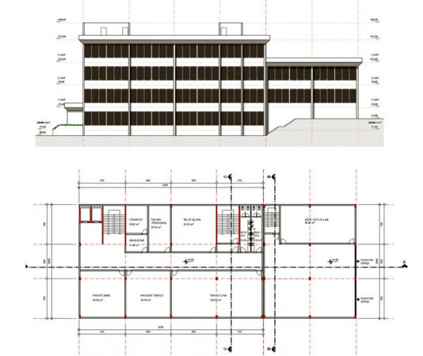
KOSGEB

Total Construction: 
3 800
Start Date: 
2006
Project Type: 
Social & Cultural
Project Scope: 
All Architectural Projects
Location: 
İstanbul