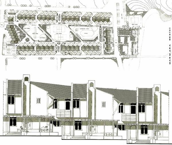
Nizam Evleri 1

Total Construction: 
16 000
Start Date: 
1988
Project Scope: 
Konut
Location: 
Marmara Ereğlisi / Tekirdağ