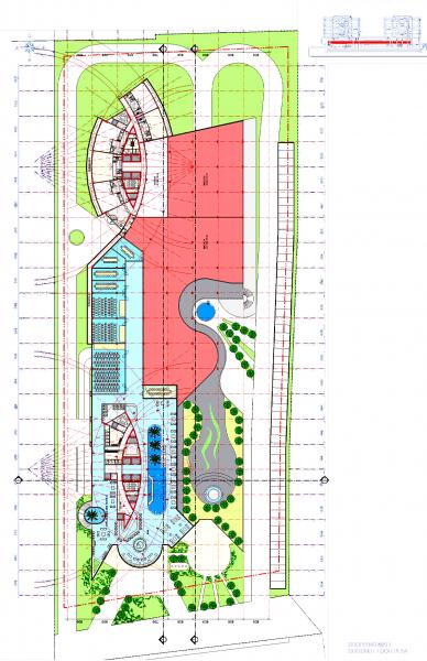
Nur Yıldız AVM

Total Construction: 
103 000
Start Date: 
2010
Project Type: 
Commerce
Project Scope: 
All Architectural Projects
Location: 
İstanbul