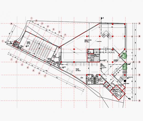
Total Construction: 13 965Start Date: 1998Project Type: Social & CulturalProject Scope: All Architectural ProjectsLocation: İstanbulGallery: