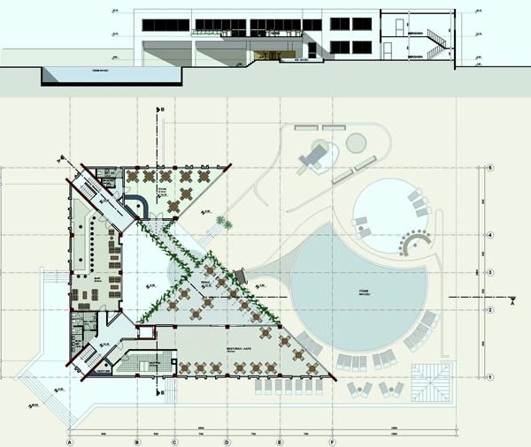
Bizimtepe Sosyal Tesisi

Toplam İnşaat: 
8 000
Başlangıç Tarihi: 
1999
Proje Türü: 
Turizm ve Konaklama
Proje Kapsamı: 
Tüm Mimari Projeler
Lokasyon: 
Demirciköy