Skip to main content
OFİS
BÜLTEN
PROJELER
İLETİŞİM
Türkçe
English
You are here
Ana Sayfa
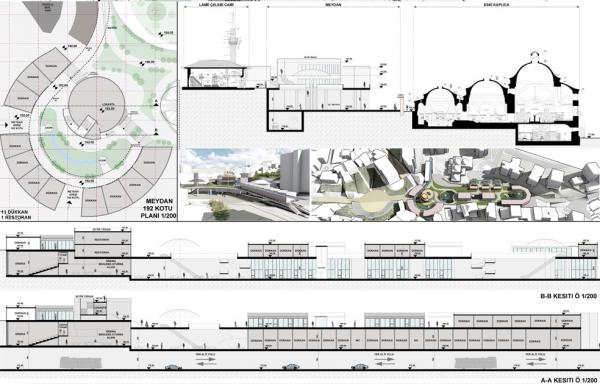
Bursa Çekirge Meydanı Kentsel Tasarım Yarışması
Başlangıç Tarihi:
2017
Proje Kapsamı:
Kentsel Tasarım Yarışması
Lokasyon:
Bursa - Çekirge
Galeri: