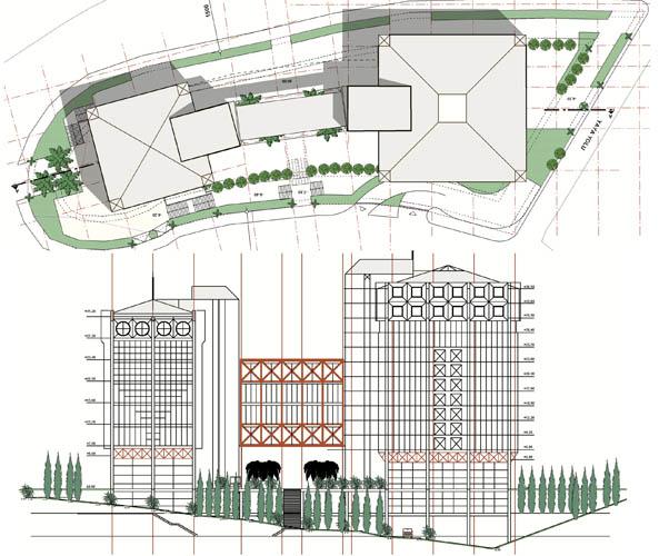
Erem A.Ş. Ofis Binası

Toplam İnşaat: 
8 500
Başlangıç Tarihi: 
1997
Proje Türü: 
Büro
Proje Kapsamı: 
Tüm Mimari Projeler
Lokasyon: 
İstanbul