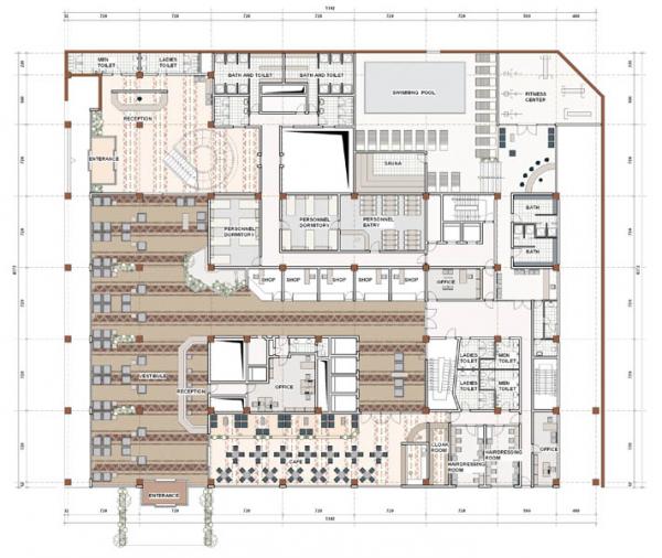
Kiev Otel Restorasyon Projesi

Toplam İnşaat: 
25 000
Başlangıç Tarihi: 
1997
Proje Kapsamı: 
Otel Renevasyon
Lokasyon: 
Kiev - Ukraine