Skip to main content
OFİS
BÜLTEN
PROJELER
İLETİŞİM
Türkçe
English
You are here
Ana Sayfa
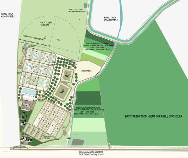
KOÇ-ATA Besi Tesisleri
Başlangıç Tarihi:
1999
Proje Kapsamı:
Besi Tesisleri
Lokasyon:
Şanlı Urfa
Galeri: