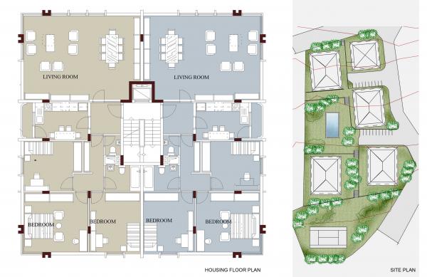
Toplam İnşaat: 5 000Başlangıç Tarihi: 1995Proje Türü: KonutProje Kapsamı: Tüm Mimari ProjelerLokasyon: İstanbulGaleri: