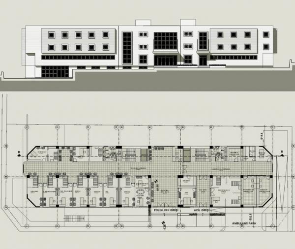
Yakuplu Saglik Merkezi

Toplam İnşaat: 
4 000
Başlangıç Tarihi: 
2005
Proje Türü: 
Sağlık
Proje Kapsamı: 
Tüm Mimari Projeler
Lokasyon: 
İstanbul